October is National Architecture Month, also known in some circles as Archtober. To commemorate the month, I am going to post a brief post every day of the month.
This post is a little bit of “inside baseball” talk. Poche is a French word, pronounced “po-shay”. It refers to the areas inside a building which are inside the walls, and more specifically, to those areas which are thick.
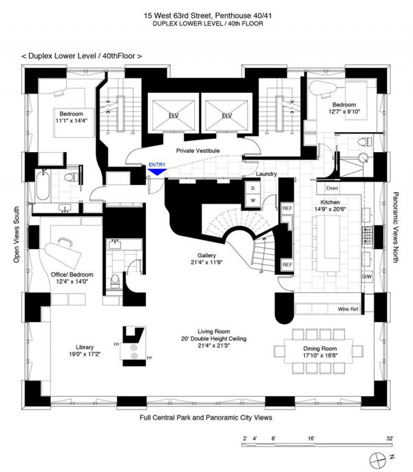
In the plan below, notice the big black area more or less in the center of the plan. This area is all wall. Just above that block of black, above the words “Private Vestibule”, you can see how there are a couple of black areas that are shaping the Private Vestibule.

The architect, Charles Gwathmey, was a master of manipulating space using poche. As you study this plan you can see how Gwathmey has shaped the walls, making them thicker and thinner, rounding edges, curving areas, slanting one side of the all, but not the other. By doing this, he is shaping the rooms. This apartment is in a tall building and there are columns and pipes and ventilation ducts that run from floor to floor. Those really thick areas probably contain vents and pipes. By shaping the walls he was able to not only shape the spaces, but hide the pipes and vents.
Poche is often used for just this practice: hiding mechanical pieces or hiding structural members. But hiding it in a way that also shapes the spaces defined by the walls.
xxx