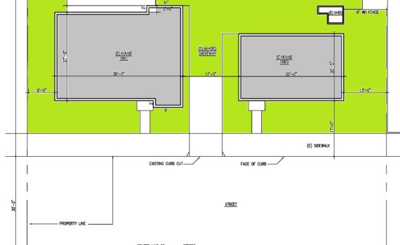
I recently took on a project helping a client who had started work without a permit and was consequently sighted by the local jurisdiction. It turned out that the scope of work he was performing did not require a full set of drawings, just a site plan. Easy-peasy, I thought. […]
site plans
        
          1 post        
      
                     
  